"Onde a cultura se encontra com o espaço público."
O Museu do Pinhão nasce em Curitiba como um gesto de memória e pertencimento. Mais do que um espaço expositivo, ele é uma praça coberta de encontros — entre tempos, culturas e formas de viver.
Desde seus primeiros ciclos de ocupação, Curitiba se formou ao redor da araucária. O pinheiro-do-paraná moldou a paisagem, a economia e o imaginário da cidade. O pinhão, sua semente, tornou-se símbolo da resistência local, alimento de invernos longos, festa de comunidades e elo silencioso entre o humano e a floresta.
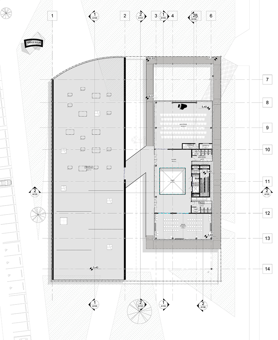
Erguido sobre essa ancestralidade, o museu se propõe como uma extensão do espaço público. A pavimentação da calçada avança para o interior, diluindo fronteiras entre dentro e fora, entre o institucional e o popular. Ao invés de um edifício fechado sobre si, o projeto se abre como convite.
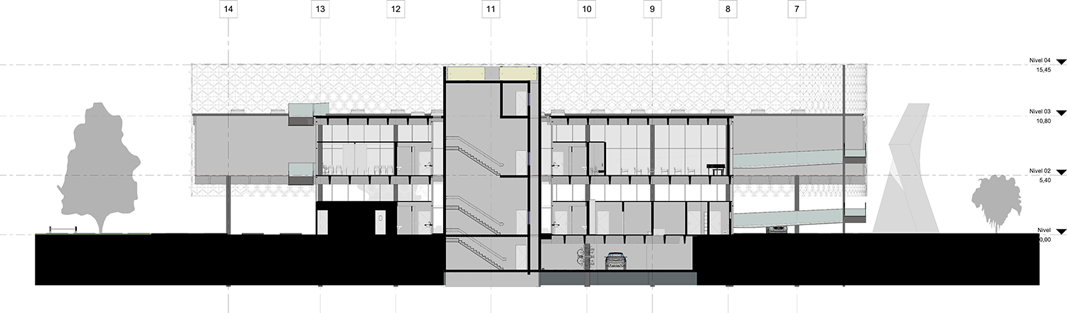
​​​​​​​No espaço, diferentes níveis dialogam entre si por meio de uma circulação fluida — inspirada no sistema Raumplan — conectando salas expositivas, ateliês e áreas de convivência. Assim como o pinhão se espalha entre raízes profundas e galhos longos, o museu propõe um percurso orgânico, que respeita o tempo, valoriza o gesto e convida à permanência.
Mais do que falar sobre o pinhão, o museu busca viver como ele: ser presença firme no chão, mas generosa e fértil para o que virá. Um espaço onde o passado não se cristaliza, mas pulsa — alimentando a cultura, a memória e o futuro coletivo.
Back to Top