MEMORIAL CONCEITUAL
O projeto SESC GALERIA insere-se no contexto da requalificação do centro de São Paulo, respeitando a memória e identidade da cidade enquanto promove novas experiências culturais e sociais. O edifício João Brícola, antigo lar da icônica loja Mappin, transforma-se em um espaço de encontro, reflexão e convivência, reforçando a vocação do SESC de democratizar o acesso à cultura e ao patrimônio histórico. A dinâmica urbana da Praça Ramos de Azevedo e sua relação com o Teatro Municipal e a Prefeitura fazem dele ponto de convergência entre passado, presente e futuro.
O projeto SESC GALERIA insere-se no contexto da requalificação do centro de São Paulo, respeitando a memória e identidade da cidade enquanto promove novas experiências culturais e sociais. O edifício João Brícola, antigo lar da icônica loja Mappin, transforma-se em um espaço de encontro, reflexão e convivência, reforçando a vocação do SESC de democratizar o acesso à cultura e ao patrimônio histórico. A dinâmica urbana da Praça Ramos de Azevedo e sua relação com o Teatro Municipal e a Prefeitura fazem dele ponto de convergência entre passado, presente e futuro.
CONCEITO ESTRATÉGICO
A intervenção parte de uma leitura sensível do contexto urbano, valorizando a materialidade histórica e ressignificando
os espaços de forma inclusiva, se estruturando em três eixos principais:
A intervenção parte de uma leitura sensível do contexto urbano, valorizando a materialidade histórica e ressignificando
os espaços de forma inclusiva, se estruturando em três eixos principais:
• Abertura e Fluxo Urbano – O térreo funciona como uma grande galeria pública, resgatando a lógica das vitrines
e da permeabilidade visual, características da arquitetura original. Os eixos de circulação respeitam as conexões
naturais do entorno, acolhendo o fluxo da Rua Barão de Itapetininga em direção ao Viaduto do Chá e ao Teatro
Municipal.
• Requalificação Patrimonial – A intervenção preserva elementos estruturais e estéticos, garantindo a integridade
histórica do edifício. A abertura zenital no núcleo de circulação vertical evoca sua espacialidade original, permitindo
uma nova leitura ao integrar iluminação natural e ventilação passiva.
• Sustentabilidade e Inovação – O projeto incorpora tecnologias contemporâneas para eficiência energética e conforto
ambiental, incluindo painéis solares, reúso de água pluvial e soluções bioclimáticas. O objetivo é adaptar o
edifício aos desafios do século XXI, assegurando sua longevidade funcional e relevância social.
Abertura e Fluxo Urbano
Fachada vista do viaduto do chá
Integração com a Praça Ramos de Azevedo
Requalificação das calçadas
Recepção geral
Galeria Térreo
Galeria Térreo
Requalificação Patrimonial
Auditório
Espaço de Atendimento e Café
Escritório de ADM
Editorial
Sustentabilidade e Inovação
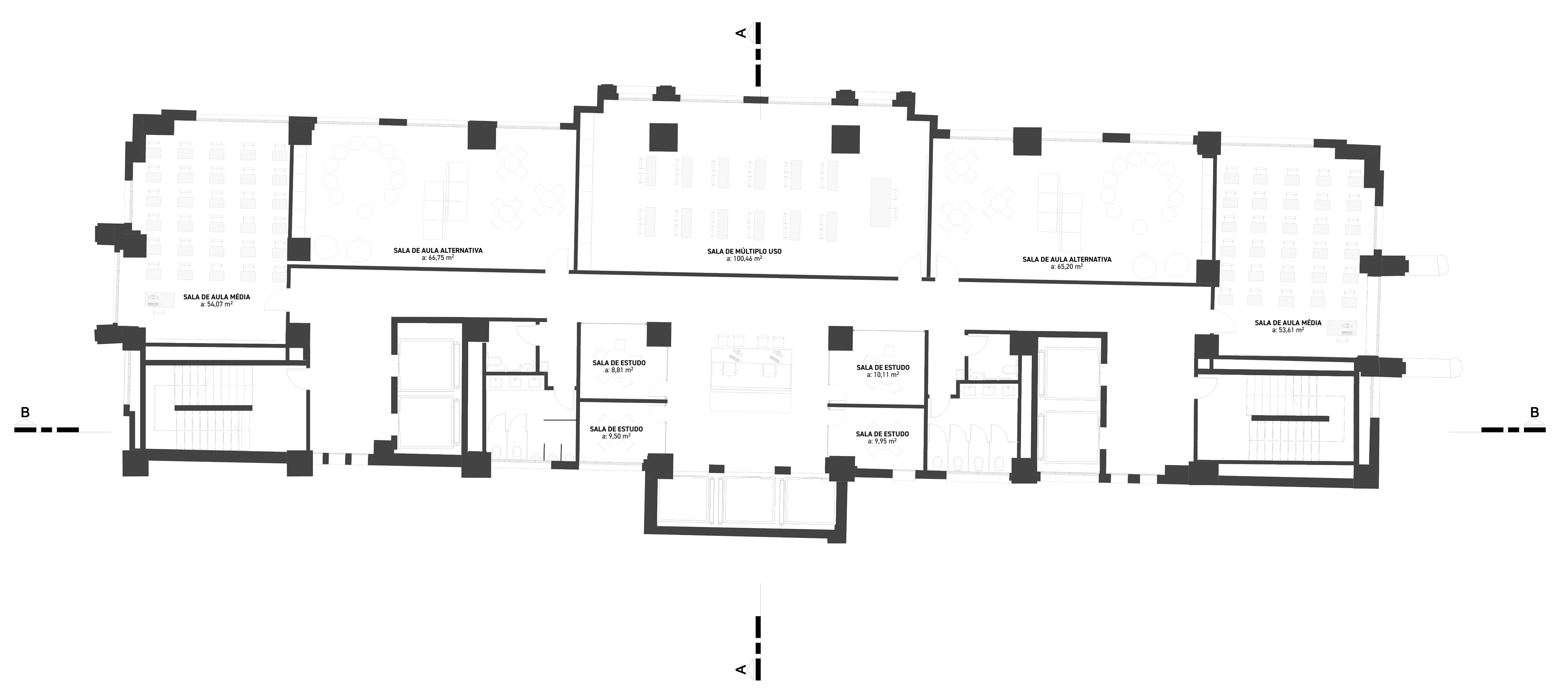
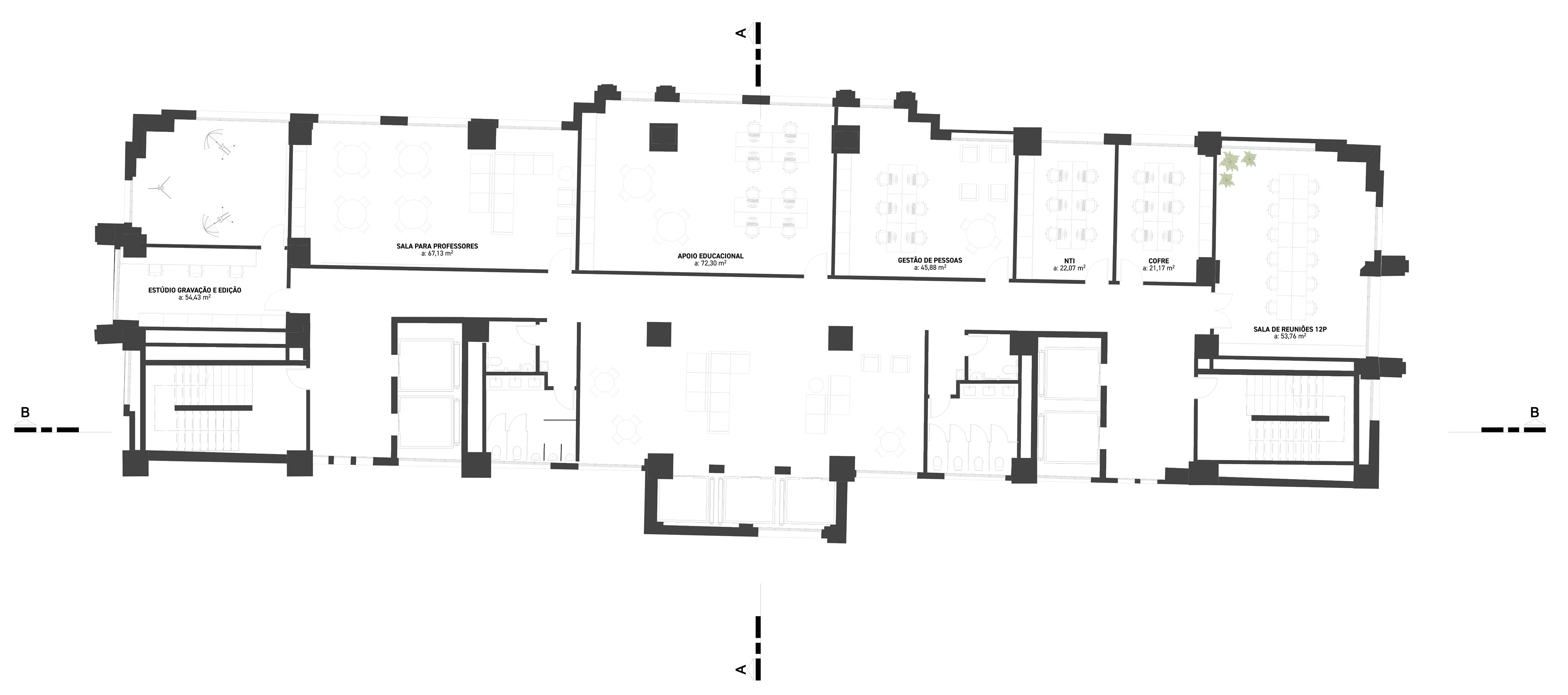
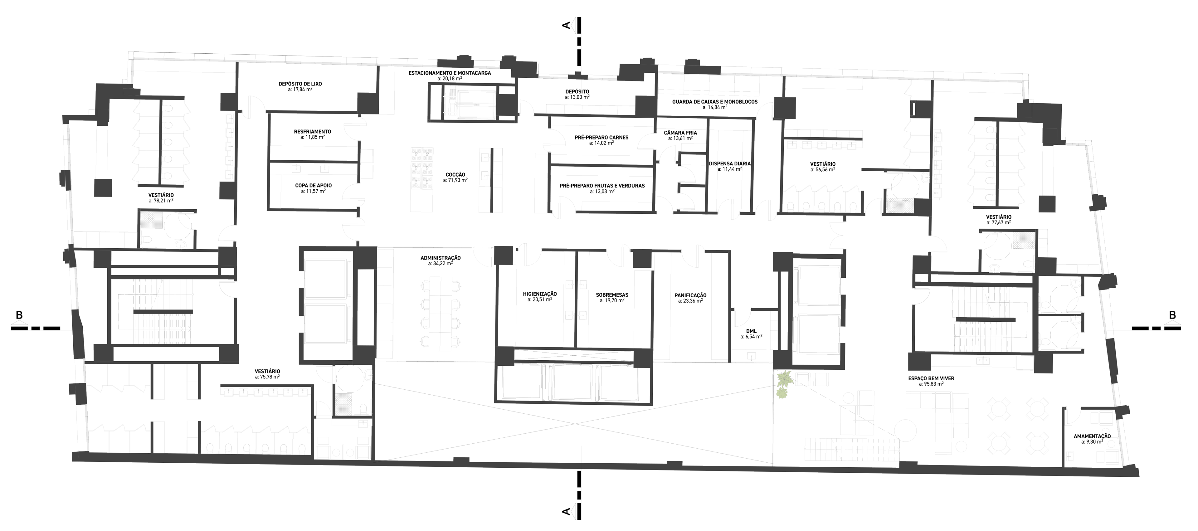
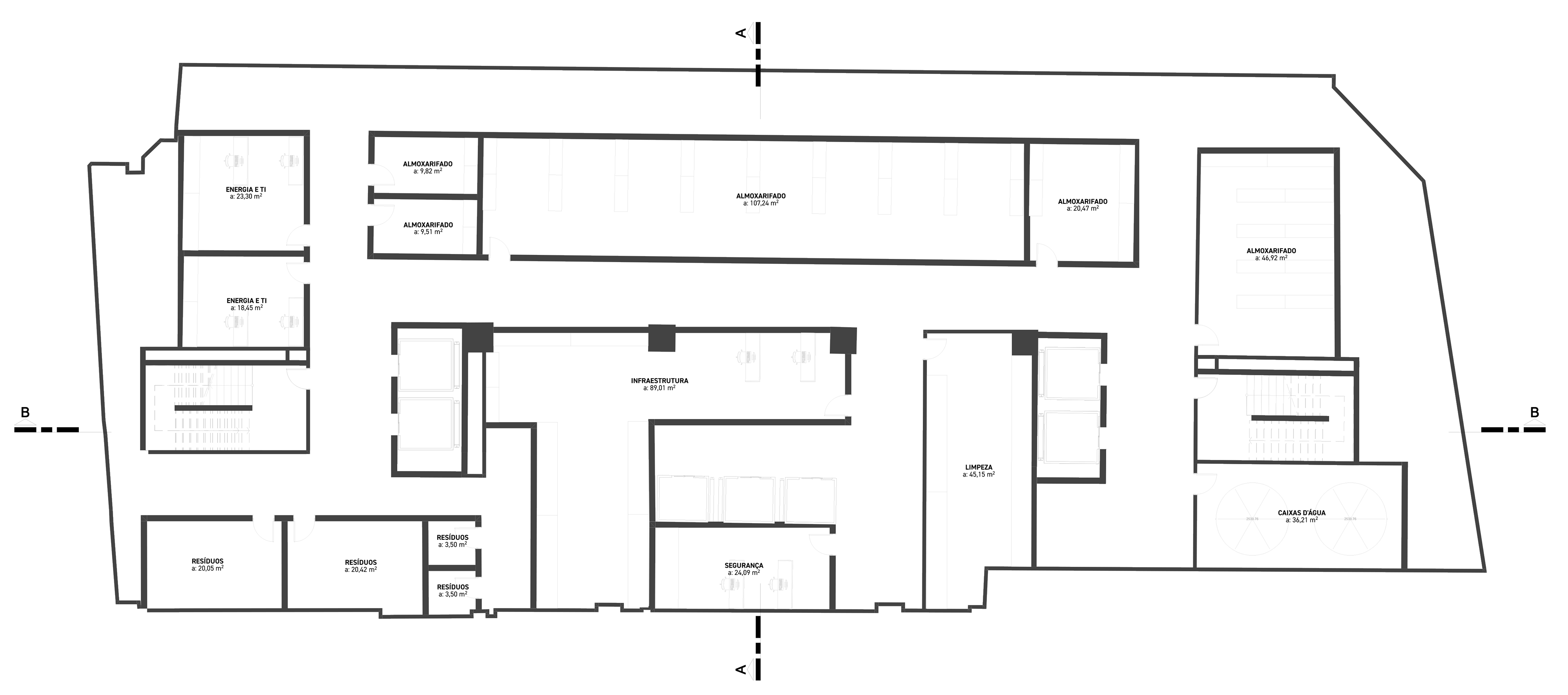
PROGRAMAÇÃO ESPACIAL
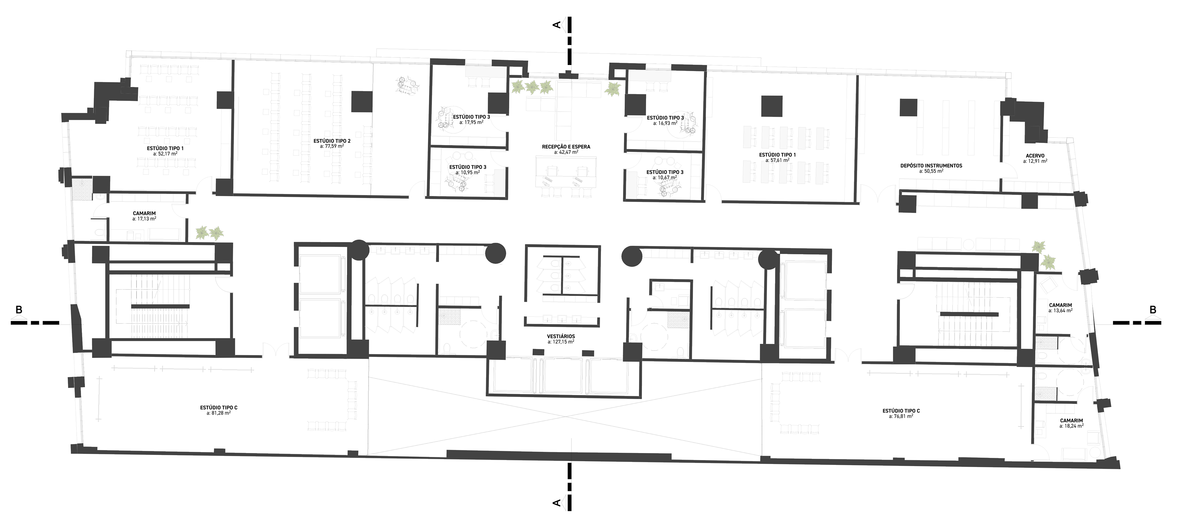
A ocupação foi planejada para otimizar o uso cultural e educativo, estruturando-se da seguinte forma: Térreo – Espaço expositivo de livre acesso, conectando a cidade ao interior do edifício. Abriga exposições tempo rárias, instalações interativas e um espaço de memória do Mappin e do SESC.
• 1º Pavimento – Área de recepção e atendimento ao público, integrada a uma cafeteria que estimula a perma nência e a convivência.
• Pavimentos Intermediários – Galerias expositivas, salas multiúso para oficinas e cursos, além de espaços dedi cados à pesquisa e documentação do patrimônio histórico e cultural.
• 6º Pavimento – Restaurante e mirante, oferecendo uma vista privilegiada do centro da cidade e reforçando a relação entre o edifício e seu entorno.
• Cobertura – Espaço aberto para eventos culturais e atividades educativas, consolidando o edifício como um equipamento urbano dinâmico e acessível.
0 - SUBSOLO
1 - TÉRREO
2 - 1PAV
3 - 2PAV
4 - 3PAV
5 - 4PAV
6 - 5PAV
7 - 6PAV
8 - 7PAV
9 - 8PAV
10 - 9PAV
11 - 10PAV
12 - 11PAV
13 - 12PAV
14 - 13PAV
15 - COBERTURA
O SESC GALERIA
propõe um novo olhar sobre o patrimônio edificado do centro de São Paulo, reafirmando seu valor como parte essencial da identidade cultural paulistana. Assim como o Mappin, que revolucionou o co mércio ao abrir suas vitrines para o público, convidando a população a redescobrir o centro e sua história. Em meio à densidade urbana e à pressa cotidiana, ele se torna um espaço de pausa, troca e inspiração – um elo entre a memória e o futuro de São Paulo
Corte AA